[<<Содержание] [Архив] ЛЕХАИМ ДЕКАБРЬ 2007 КИСЛЕВ 5768 – 12(188)
«Как прекрасны шатры твои, Яаков...»
Происхождение синагоги в свете современных исследований
Наталья Май
За последние десятилетия существенно возрос интерес к древним синагогам. Написано огромное количество книг и статей об их архитектуре и искусстве, эпиграфике и синагогальной литургии, об управлении синагогой и ее общественных функциях.
Сказанное выше, несомненно, верно и для первых синагог, датируемых периодом второго Храма (первые века до н. э. – первый век н. э). Новейшие исследования пересмотрели ряд выводов, сделанных ранее, а также поставили новые проблемы и задачи. Что называлось синагогой на первых этапах ее существования? Когда и где впервые появляется институт синагоги и соответствующие ему строения? Каков был характер и функции первых синагог? Каковы были взаимоотношения и связи между первыми синагогами и Храмом? По всем этим вопросам до сих пор ведется дискуссия, и различные ученые зачастую придерживаются противоположных мнений[1]. В этой статье мы попытаемся, опираясь на исследуемый материал, выбрать наиболее вероятные и приемлемые ответы на данные вопросы.
В религиозной практике человечества в целом и особенно на Древнем Востоке феномен централизации культа вплоть до сосредоточения его в единственном храмовом комплексе не имел прецедентов. Сама уникальность этого явления породила всевозможные спекуляции о возникновении синагог еще в периоды первого Храма, Вавилонского пленения или возвращения из плена[2]. Библейское повествование неоднократно упоминает места, где происходили отправления культа наряду с Храмом, как правило в связи с их искоренением[3]. Следует, однако, помнить, что, в отличие от Храма, под синагогой мы понимаем религиозный и общинный центр, где не производились, как и по сей день не производятся, жертвоприношения. Уже для синагогальной литургии периода второго Храма центральным элементом являлось чтение Торы. Время возникновения этого обычая неизвестно и, несмотря на упоминание публичного чтения свитка закона Моисеева в книге Нехемии (8:1–3), мы ничего не знаем о подобной практике в эллинистический период.
Израильский исследователь Исраэль Левин выдвинул предположение, что в библейский период, точнее, в период первого Храма и возвращения в Сион функцию позднейшей синагоги выполняли городские ворота с прилегавшими к ним площадями[4]. По его мнению, синагоги возникают в немалой степени благодаря тому, что в эллинистической период, вместе с прочими греческими нововведениями, планировка городских ворот меняется, предвратная площадь исчезает, и ее функции переходят к синагоге. Действительно, на предвратных площадях происходили собрания, зачастую сопровождавшиеся проповедями, вершился суд. Но не следует забывать, что ворота библейских городов порой представляли собой настоящую альтернативу Храму. Там отправлялись культы, иногда языческие, и приносились жертвы. Поэтому царь Йешаяу уничтожал эти предвратные «храмы» наряду с прочими капищами[5]. Многие другие функции, которые выполняли синагоги, такие, как, например, приют для приезжих и место сбора пожертвований, в отношении городских ворот не засвидетельствованы. Более того, в этот период в еврейской религиозной практике отсутствует важнейший элемент, который сформируется значительно позднее, – синагогальная литургия.

Руины синагоги на острове Делос. II–I века до н. э.
Где же и когда возникает синагога?
Само слова «синагога» в переводе с греческого обозначает «собрание» или «место собрания». Последнее соответствует еврейскому «(бейт) кнессет» – «(дом) собрания». Этот термин употребляется в источниках написанных по-гречески, таких как произведения Иосифа Флавия и Филона Александрийского, а также Новый Завет. Из-за относительно редких упоминаний слова «synagogue» в этих источниках невозможно установить, обозначало ли оно в этот период именно здание, где происходили собрания общины, или же саму общину.
Тем не менее наиболее раннее греческое название еврейского дома собраний не «синагога», а «proseuche» – (место) молитвы. Так называются ранние синагоги в Египте, на острове Делос и в Боспорском царстве в найденных там эпиграфических источниках, а также синагога в Тверии[6].
Первые письменные упоминания «proseuche» относятся к III веку до н. э. Надписи этого времени и папирусы II века до н. э, найденные в Египте, содержат информацию о существовании там этого института[7].
Находка первых письменных источников, касающихся еврейских молельных домов в Египте, неудивительна, ведь именно там существовала крупнейшая на тот период еврейская община в диаспоре. Идея о возникновении синагоги в птолемейском Египте принадлежит Хенгелю и была высказана им уже в 1971 году[8]. Гриффитц[9] указывает на египетский институт, известный под названием Per Ankh – «дом жизни», как на возможный прототип «proseuche», поскольку «дом жизни» служил местом молитвы, учебы и помещением для библиотеки, состоявшей из религиозных и культовых книг. Ту же роль выполняла и синагога. Тем не менее, следует отметить, что, в отличие от «дома жизни», у «proseuche» были гораздо более широкие общественные и общинные функции: и она сама, и осуществлявшийся в ней образовательный процесс, предназначались для всей общины, а не только для узкого круга жрецов.
Несмотря на свидетельства надписей и папирусов, нет однозначных доказательств того, что синагога возникает именно в Египте. До сих пор там не было найдено ни одной древней синагоги – даже описанной в источниках знаменитой Александрийской[10]. Первое здание, которое возможно идентифицируется как «proseuche» было раскопано на острове Делос.
По-видимому, синагога в период своего возникновения испытала влияние нееврейского окружения – и как институт, и как архитектурное сооружение. Свидетельство тому мы находим в письменных источниках I века н. э., где для обозначения еврейской общины наряду с «proseuche» и «synagoge» используются также такие греческие термины, как «synodos» – «собрание», «сходка», а также «политическая группировка», «партия»; «thiasos» – «группа», «сборище», «торжественное шествие в честь божества»; и латинский «collegium» – «товарищество», «братство» и «профессиональная или конфессиональная корпорация». Это связано, вероятно, с определенным параллелизмом между соответствующими языческими институтами и синагогой. Еврейские общины диаспоры перенимали и приспосабливали для своих нужд местные общественные структуры, которые отвечали их потребностям. Это касается как названий должностных лиц, так и различных видов общественной деятельности. Отсюда и различия в еврейской терминологии, употреблявшейся в разных частях Римской империи.
Все первые синагоги Эрец Исроэл – синагоги Иерихона, Гамлы, Масады, Геродиона и Кирьят-Сефера – в архитектурном отношении являлись трехнефными базиликами[11], то есть воспроизводили типичное светское римское общественное здание.
Такой выбор архитектурного облика не случаен. Функции ранней синагоги как института были, прежде всего, общественными и общинными с некоторыми религиозными элементами. Основным культовым центром иудаизма оставался Храм. Среди разнообразных функций синагоги, отмеченных письменными источниками, – политические и общественные собрания (отсюда и само название: «дом собраний», или «собрание»), судопроизводство, включая приведение в исполнение приговора, место ночлега для приезжих единоверцев. В синагоге осуществлялись сбор пожертвований (как на нужды местной общины, так и для Храма), религиозное наставничество, проводились общинные трапезы и, конечно же, совершались отправления религиозного культа, такие, как молитва и чтение Торы.

Развалины комплекса Масада. Здесь находилась одна из первых синагог Эрец Исроэл.
Одним из основных достижений исследований древних синагог за два последних десятилетия является пересмотр взаимоотношений синагоги в период ее возникновения и Храма. До сих пор было принято считать, что между синагогой и Храмом существовало соперничество и даже вражда, поскольку храмовую службу возглавляли священники, а синагогальную – прушим (фарисеи); в Храме существовала жесткая иерархическая структура, синагогальная же активность любого вида была доступна каждому. В настоящее время ясно, что синагога не соперничала с Храмом, а дополняла его, выполняя те функции, которые в нем отсутствовали. Храм являлся для синагоги образцом, моделью для подражания. Более того, большинство ученых в настоящее время пришли к выводу, что фарисеи не играли никакой роли в возникновении синагоги, да и в более поздней раввинистической литературе синагога не связывается с деятельностью фарисеев[12].
Одной из причин возникновения первых синагог была потребность в частичном восполнении функций Храма в отдаленных от Иерусалима регионах и, прежде всего, в диаспоре. Может быть, именно поэтому наиболее раннее здание, которое можно считать синагогой, было найдено за пределами Эрец Исроэл.
В начале XX века на одном из островов Эгейского моря, Делосе (к юго-востоку от материковой Греции), было обнаружено здание, ставшее предметом оживленной научной дискуссии. Только к 1970-м годам ученые пришли к выводу, что это строение является наиболее ранней из известных на сегодняшний день синагог.
Точно неизвестно, когда местная еврейская община построила или начала использовать это здание как синагогу. Датировка колеблется между II веком до н. э. и серединой I века до н. э. Комплекс продолжал функционировать как синагога вплоть до II века н. э. Он располагался на восточном побережье острова, на некотором расстоянии от гавани и городского центра, рядом с гимнасием и другими общественными зданиями и жилыми кварталами. Возможно, синагога первоначально была частным домом, позднее превращенным местной еврейской общиной в религиозный и общественный центр. Подобные явления нередки и для других еврейских общин диаспоры в более поздние периоды (Остия, Приена, Дура Европос и Стоби). Этот феномен зафиксирован и в отношении языческих общин на самом Делосе[13].
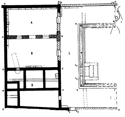
Делосская синагога имела трехчастное деление в плане. Она состояла из основного зала – зала собраний (А), находившегося в северной части здания. Туда вел тройной вход из средней комнаты (В). В южной части располагался ряд небольших помещений (D), включая цистерну. К востоку от здания, в сторону моря, имелся открытый двор (С). В зале собраний вдоль двух, а возможно, и более стен шли скамьи, и посредине западной стены, напротив единственного входа со двора, был установлен резной мраморный трон с подножной скамьей.
Идентификация Делосского комплекса как синагоги основана на следующих соображениях. Это, прежде всего, наличие надписей, свидетельствующих о связи его с еврейской общиной. Четыре из них, вырезанные на базах колонн, обнаруженных в помещениях А и В упоминают Б-га Высочайшего (Theos Hypsistos) – так часто назывался Б-г Израиля в еврейских общинах диаспоры в этот период . Пятая надпись происходит из соседнего дома и упоминает «proseuche». В дополнение к этому известно о проживании евреев на Делосе в позднеэллинистический период. План здания напоминает планы синагог Галилеи, и оно расположено неподалеку от моря – как и синагоги многих других общин Средиземноморья. Здание было обращено на восток, в сторону Иерусалима. Резное кресло являлось, по всей видимости, Троном Моисея[14], и, наконец, цистерна могла служить миквой.

План синагоги на острове Делос. II–I века до н. э.
Кроме того, в 1980-х годах в ста метрах к северу от здания, отождествляемого с синагогой («proseuche»), были обнаружены две надписи на мраморной стеле, которые свидетельствуют о существовании на Делосе самаритянской общины уже в III или во II веках до н. э. Эти надписи упоминают «израильтян на Делосе», которые совершают жертвоприношения на горе Геризим. Они также говорят о постройке своей самаритянской «proseuche». Этот факт косвенно подкрепляет предположение о существовании у еврейской общины своего молельного дома, поскольку как в Эрец Исроэл, так и в диаспоре еврейская община, была обычно больше и сильнее самаритянской.
Не исключено, впрочем, что обе общины, еврейская и самаритянская, использовали одно и то же помещение в качестве молельного дома. Известно о близости между двумя общинами в диаспоре – в Египте они даже содержали общий благотворительный фонд[15].
Единственным аргументом против идентификации здания как синагоги было обнаружение в культурном слое «proseuche» светильников с изображениями людей и животных. Но в настоящее время, после многочисленных находок фигуративных изображений в древних синагогах, этот факт уже нельзя рассматривать как свидетельство того, что открытый на острове Делос комплекс синагогой не являлся.
В 1997–1998 годах при раскопках зимних дворцов Хасмонеев в Иерихоне на западной оконечности дворцового комплекса, между ним и жилыми кварталами, было обнаружено сооружение, идентифицированное Эхудом Нецером, археологом, производившим раскопки, как синагога. Если эта идентификация верна, то речь идет о самой ранней синагоге, найденной до сих пор на территории Палестины. Следует отметить, что у здания были выявлены три строительных периода. На первой стадии своего существования это был дом с примыкающим к нему открытым двором. Ничто не указывает на то, что в этот период это помещение служило синагогой. На второй фазе были пристроены синагогальный зал и миква с банными помещениями; на третьей фазе пристраивается триклиний – помещение, предназначенное для трапез, с прилегающей к нему кухней. На двух последних фазах комплекс становится синагогой. В таком качестве он функционировал, пока не был разрушен, по-видимому, землетрясением 31 года до н. э.
В пользу идентификации иерихонского комплекса как синагоги были высказаны следующие аргументы:
1. Центральный зал являлся крытым помещением, поскольку имел глинобитный пол.
2. Зал имел базиликальное сечение, то есть крыши боковых нефов были ниже, чем крыша центрального, что обеспечивало достаточное дневное освещение.
3. Вдоль стен зала шли каменные скамьи, на которых могли свободно разместиться около 150 человек.
4. В северной стене зала была встроенная ниша солидных размеров и сложной конструкции.
5. Наличие в зале чаши для воды (гурна.
6. Одновременно с залом и в непосредственной близости к нему была сооружена миква и банные помещения.
7. Впоследствии к залу был пристроен подковообразный триклиний с прилегающей к нему кухней.

Делосская синагога. Резной мраморный трон с подножной скамьей.
В период второго Храма синагога являлась общинным центром, где обсуждались политические и социальные материи, вершился суд, собирались пожертвования и изучался и преподавался Закон Торы. Комплекс, обнаруженный в Иерихоне, безусловно, позволял осуществлять все эти функции. Особенно важны для его идентификации как синагоги были ниша сложной конструкции и триклиний. В синагоге двухъярусная ниша использовалась, по-видимому, следующим образом: на ее верхнем ярусе хранились свитки, в то время как нижний, подпольный использовался для захоронения ветхих рукописей, то есть выполнял функции генизы. Таким образом, ниша представляла собой Арон Койдеш – шкаф для хранения свитков Торы.
Что касается триклиния, свидетельства о сборе евреями денег на общественные трапезы и хранении этих денег в синагогах есть у Иосифа Флавия (Иудейские древности, XIV, стр. 214–216; XVI, стр. 164), а о проведении этих трапез в синагогах – в Мишне (Цавим, 3:2). В синагоге Остии (Италия) рядом с основным зданием также была обнаружена кухня[16].


Схематические планы трех строительных периодов синагогального комплекса в Иерихоне.
Тем не менее, если бы синагога в Иерихоне была раскопана прежде Палестинских синагог I века н. э., то вряд ли было бы возможно определить функцию этого комплекса, поскольку его идентификация как синагоги опирается, прежде всего, на сходство его с синагогами Гамлы, Геродиона и Масады.
Ближайшую аналогию Иерихонскому комплексу представляет синагога Гамлы, единственная из трех, которая была изначально построена как синагога: в Иерихоне, также как и в Гамле, центральный зал с рядами пилястров (в Гамле с колоннадами) был окружен дополнительными помещениями различного назначения; центральные залы обеих синагог имели плоские крыши, причем крыши центральных нефов были выше, чем боковых, что обеспечивало возможность освещения через окна верхнего этажа; количество рядов скамей, идущих вдоль стен, разнится в Иерихоне и в Гамле, но ориентированы они одинаково – в направлении центра зала, где находилось возвышение для чтения Торы (бима)[17]; в обоих залах в северную, продольную стену была встроена ниша. В Иерихоне, так же как и в Гамле, под полом зала был обнаружен канал, подводивший воду к чаше, идентифицированной С. Гутманом[18] как гурна – чаша для омовения рук. В Иерихоне канал шел дальше и снабжал водой микву. Возможно, тоже самое было и в Гамле, где рядом с синагогой также была найдена миква.
Здания, найденные на Делосе и в Иерихоне, являются самими ранними постройками, которые можно идентифицировать как синагоги. Оба они датируются примерно одним периодом – конец II–I века до н. э. Рассматривая их, мы уже столкнулись с рядом проблем, связанных с археологической идентификацией синагог этого периода. От чего же эти проблемы возникают, с чем они связаны, можно ли их решить и как?
Проблемы идентификации синагогальных зданий характерны не только для синагог Делоса и Иерихона, но и для синагог I века н. э. Объясняются они, прежде всего, отсутствием установившейся традиции, предполагавшей определенный облик здания, наличие специфической мебели и утвари, присутствие еврейской символики. Отсутствие такой традиции непосредственно связано с тем, что в рассматриваемый период функции синагоги – и как социально-религиозного института, и как здания – еще не окончательно сформировались. Видимо, поэтому первые синагоги имели архитектурный облик секулярной постройки – базилики, предназначенной в первую очередь для собраний общины. Именно этот облик постепенно становится характерной чертой всех синагогальных строений, и по нему уже можно идентифицировать синагогальные здания I века н. э.
ЛЕХАИМ - ежемесячный литературно-публицистический журнал и издательство.
[1] Levine, L.I. The First-Century Synagogue. Critical reassessments and assessments of the critical. D.R. Edwards (ed.) Religion and Society in Roman Palestine. Old questions, new approaches. New York and London, Routledge, 2003.
[2] Levine, L.I. The Ancient Synagogue. The First Thousand Years. New Haven – London, Yale University Press. Pp. 20–26.
[3] Например, II Царей, 23:12, 19.
[4] Ibid, pp. 26–31.
[5] II Царей, 23:8.
[6] См., например, Иосиф Флавий, Жизнеописание. С. 277, 279, 280, 290–303.
[7] Ibid, pp. 75–82.
[8] M. Hengel. «Proseuche und Synagoge: Judische Gemeide, Gotteshaus und Gottesdienst in der Diaspora und in Palastina». G Jeremias et al. (eds.) Tradition und Glaube: Das fruhe Christentum in seiner Umwelt. Gottingen, 1971. Pp. 157–184.
[9] J.G. Griffiths. «Egypt and the Rise of the Synagogue», JTS 38 (1987). Pp. 1–15.
[10] Филон, О посольстве к Гаю, стр. 134.
[11] Базилика – прямоугольное в плане здание, разделенное продольными рядами столбов на три (трехнефная) или пять (пятинефная) частей – нефов. Крыша центрального нефа была выше, чем крыши боковых, – так называемое базиликальное сечение. Таким образом, над центральным нефом находился еще один этаж или пол-этажа, в стенах которого были сделаны окна. Через них освещалось внутреннее помещение, поэтому эта возвышавшаяся над остальным зданием часть называлась «клеристорий», то есть световой этаж. В языческом Риме базилики были абсолютно светскими постройками. Позже, возможно будучи унаследован у синагоги, этот тип здания стал использоваться ранними церквами и превратился в постройку исключительно религиозного назначения.
[12] Cohen S.J.D. «Were Pharisees and Rabbis the Leaders of Communal Prayer and Torah Study in Antiquity? The Evidence of the New Testament, Josephus? And the Early Church Fathers». In H.C. Kee and L.H. Cohick (eds.) Evolution of the Synagogue: Problems and Progress. Harrisburg, PA, Trinity Press International, pp. 89–105.
[13] Bruneau, P., Recherches sur les Cultes de Delos a l’époque hellenistique et a l’époque imperiale, Paris, E. de Boccard, 1970. Pp. 622–630.
[14] Трон Моисея (в Талмуде – катедра де-Моше) – почетное кресло, установленное в синагоге и предназначавшееся, по-видимому, для главы общины. Помимо трона в Делосе найдено только три таких трона – в Дура Европос, Коразине (Хоразиме) и Тверии.
[15] Иосиф Флавий, Иудейские древности, 13: 74–79.
[16] Levine, I.L. The Ancient Synagogue. The First Thousand Years. London – New Heaven, Yale University Press, 2000. Pp. 129–131.
[17] Следует отметить, что археологически эта деталь не засвидетельствована.
[18] Gutman S. And Rappel Y. Gamla – A City in Rebellion. Israel, Ministry of Defence. 1994. Pp. 100–102, note 76. Levine, I.L. The Ancient Synagogue. The First Thousand Years. London – New Heaven, Yale University Press, 2000. Pp. 307–309.